滋賀県彦根地域の不動産売買・賃貸は、丸三不動産にお任せください!
ご来店案内予約
物件リクエスト
会社概要
賃貸検索
0749-23-0303
月曜~土曜
定休日:日曜・祝日
9:00~17:00(土曜日のみ10時から)
ご希望のお客様には物件満載の情報誌をプレゼント!
売りたい!査定してほしい!も、お気軽にお問い合わせ下さい!
01
彦根市の物件は丸三不動産にお任せください!様々な条件からぴったりの物件をお探しいただけます。
売買物件
物件詳細
前のページに戻る
売地
物件ID:014368
情報更新日:2026年01月09日
Tweet
彦根市平田町
880
万円
@24.39万/坪
彦根市平田町
近江鉄道近江本線 彦根口駅 徒歩20分
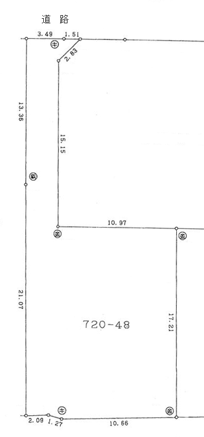
119.28m²(36.08坪)
南東
外観写真・内観写真
間取図
物件概要
現況
上物有更地引渡
引渡
相談
土地面積
119.28m²(36.08坪)
接道状況
一方(接道方向:南東)
地目
宅地
用途地域
第一種住居地域
建ぺい率
60%
容積率
200%
都市計画
市街化区域
土地権利
所有権
取引態様
仲介
建築条件
無
その他費用
-
小学校区
平田小学校
設備・条件
水道:公営/ガス:都市ガス/排水:下水
備考
※解体更地渡し ※前面道路:42条2項道路(位置指定道路)
https://www.marusan.tv/sp/search_baibai/detail.php?id=11025
物件所在マップ
周辺施設
小・中学校
病院・診療所など
保育園・幼稚園
スーパーなど
コンビニ
※情報更新のタイミング上、地図の施設情報は実際と異なる場合や、最新情報に更新されていない場合もございます。
ローンシミュレーション
オススメ物件
1,050
万円
彦根市八坂町
more
1,166.1874
万円
彦根市大堀町
more
850
万円
彦根市後三条町
more
1,159.5648
万円
彦根市高宮町
more
690
万円
彦根市日夏町
more
1,048.3395
万円
彦根市東沼波町
more
682
万円
犬上郡多賀町多賀下屋敷
more
1,065.6
万円
彦根市地蔵町
more
880
万円
彦根市高宮町
more
688.49
万円
彦根市甘呂町
more
物件一覧に戻る