
現況 | 更地 | 引渡 | 相談 |
---|---|---|---|
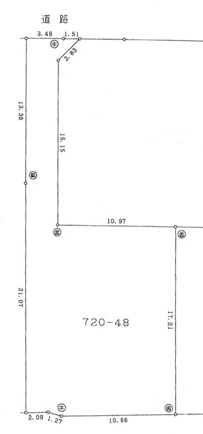
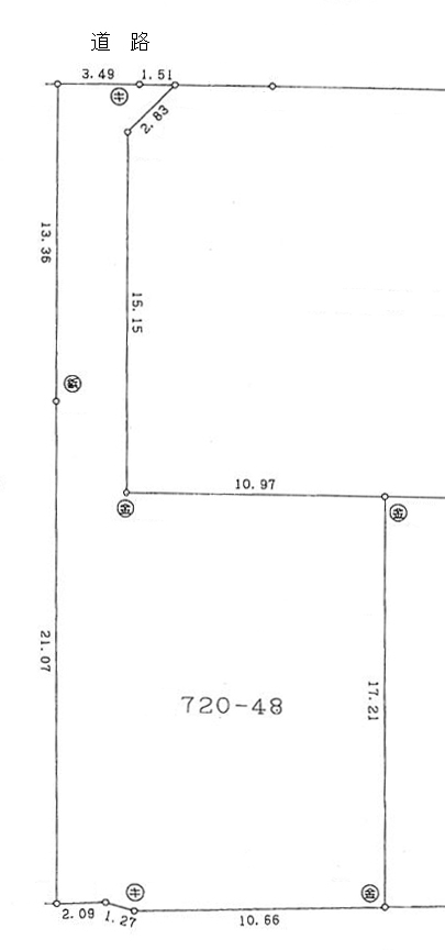
土地面積 | 248.43m²(75.15坪) | 接道状況 | 一方(接道方向:南東) |
地目 | 宅地 | 用途地域 | 無指定 |
建ぺい率 | 70% | 容積率 | 200% |
都市計画 | 市街化調整区域 | 土地権利 | 所有権 |
取引態様 | 仲介 | 建築条件 | 無 |
その他費用 | - | 小学校区 | 城陽小学校 |
設備・条件 | 水道:公営/ガス:プロパン/排水:下水 | ||
備考 | ※都計法第43条許可申請により自己居住用建物の建築が可能 ※団地施設負担金:250,000円・水道加入金:20mm 58,900円要 |
周辺施設 | |||
---|---|---|---|