売買
彦根市下西川町 中古戸建 300万円
| 物件ID | 013252 |
|---|---|
| 所在地 | 彦根市下西川町 |
| 最寄り駅 | JR東海道線 稲枝駅 |
| 所要時間 | 徒歩40分 |
| 価格 |
300万円 @2.66万/坪 |
| 築年月 | 1968年月 |
| 国土法 | 不要 |
| 駐車場 / 料金 | 空無 |
| 現況 | 空家 |
| 引渡 | 相談 |
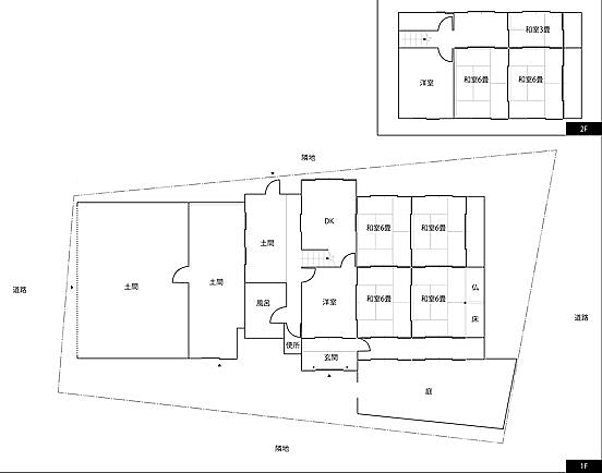
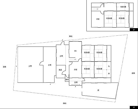
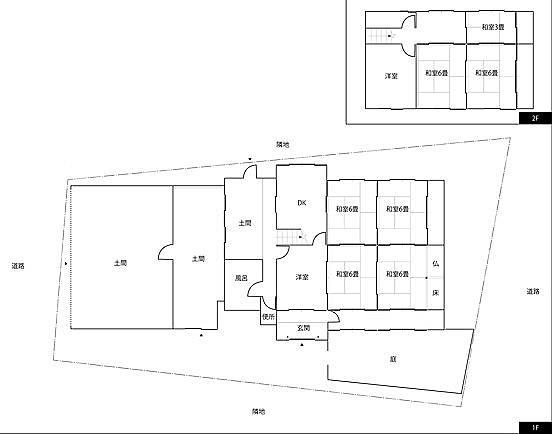
| 接道状況 | 二方(除角地)(接道方向:北西/南東) |
| 地目 | 宅地 |
| 用途地域 | 無指定 |
| 建ぺい率 | 70% |
| 容積率 | 200% |
| 都市計画 | 市街化調整区域 |
| 土地権利 | 所有権 |
| 建築条件 | 無 |
| 取引態様 | 仲介 |
| その他費用 | - |
| 設備・条件 | 水道:公営/ガス:プロパン/排水:下水/小学校近/収納スペース有 |
| 小学校区 | 稲枝北小学校 |
| 備考 | ※現状有姿取引 ※残置物無し ※住居部分に物販店舗よ料理場が併設されており、広い土間あり ※土間に地下からの湧き水設備有 ※S48年・S53年増築 ※彦根市空家バンク登録物件 |
情報更新日時:2023年12月21日