売買
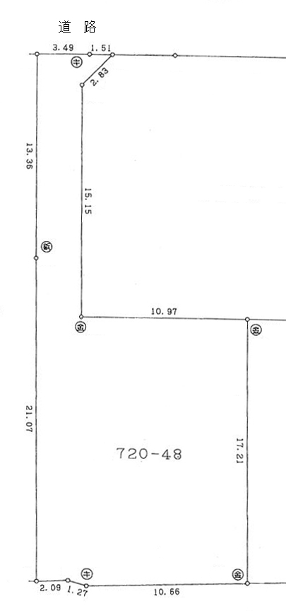
彦根市稲部町 売地 910万円
| 物件ID | 013080 |
|---|---|
| 所在地 | 彦根市稲部町 |
| 最寄り駅 | JR東海道線 稲枝駅 |
| 所要時間 | 徒歩5分 |
| 価格 |
910万円 @13.08万/坪 |
| 地積(m²) | 230.00m²(69.57坪) |
| 現況 | 更地 |
| 引渡 | 相談 |
| 接道状況 | 角地(接道方向:北西/南東) |
| 地目 | 畑 |
| 用途地域 | 第一種住居地域 |
| 建ぺい率 | 60% |
| 容積率 | 200% |
| 都市計画 | 市街化区域 |
| 土地権利 | 所有権 |
| 建築条件 | 無 |
| 取引態様 | 仲介 |
| その他費用 | - |
| 設備・条件 | ガス:プロパン/駅近 |
| 小学校区 | 稲枝東小学校 |
| 備考 | ※上下水道引込要 ※農地転用手続き要 |
情報更新日時:2026年02月25日