売買
シャン・フレーズ佐野 売地 1,140万円
| 物件ID | 012825 |
|---|---|
| 所在地 | 東近江市佐野町 |
| 最寄り駅 | JR東海道線 能登川駅 |
| 所要時間 | 徒歩10分 |
| 価格 |
1,140万円 @21.99万/坪 |
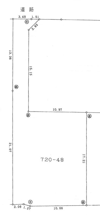
| 地積(m²) | 171.40m²(51.84坪) |
| 現況 | 更地 |
| 引渡 | 相談 |
| 接道状況 | 一方(接道方向:北西) |
| 地目 | 宅地 |
| 用途地域 | 第一種住居地域 |
| 建ぺい率 | 60% |
| 容積率 | 160% |
| 都市計画 | 市街化区域 |
| 土地権利 | 所有権 |
| 建築条件 | 有 |
| 取引態様 | 仲介 |
| その他費用 | - |
| 設備・条件 | 水道:公営/ガス:プロパン/排水:下水 |
| 小学校区 | 能登川南小学校 |
| 備考 | ※境界ブロックフェンス代:300,000円要 ※水道加入金:90,000円(13mm)要 ※分譲地内上空を電線が横断しています、建築は電線撤去後可能(2022年2月現在) |
情報更新日時:2023年02月09日