売買
彦根市長曽根南町 中古戸建 1,660万円
| 物件ID | 012720 |
|---|---|
| 所在地 | 彦根市長曽根南町 |
| 最寄り駅 | JR東海道線 彦根駅 |
| 所要時間 | 徒歩39分 |
| 価格 |
1,660万円 @32.21万/坪 |
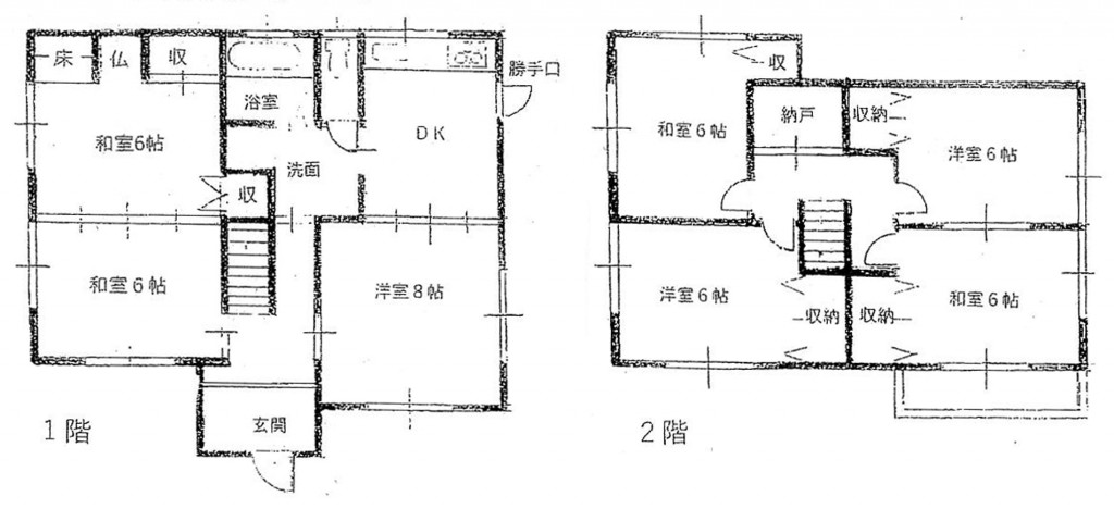
| 間取り | 7SDK |
| 築年月 | 1996年07月 |
| 国土法 | 不要 |
| 駐車場 / 料金 | 専用 |
| 現況 | リフォーム中 |
| 引渡 | 相談 |
| 接道状況 | 一方(接道方向:北西) |
| 地目 | 宅地 |
| 用途地域 | 第一種中高層住居専用地域 |
| 建ぺい率 | 60% |
| 容積率 | 200% |
| 都市計画 | 市街化区域 |
| 土地権利 | 所有権 |
| 建築条件 | 無 |
| 取引態様 | 仲介 |
| その他費用 | - |
| 設備・条件 | 水道:公営/ガス:都市ガス/排水:下水/システムキッチン/バルコニー/ウォシュレット/収納スペース有 |
| 小学校区 | 金城小学校 |
| 備考 | ※リフォーム工事渡し(●キッチン・浴室・洗面台・トイレ・給湯器新調 ●クロス張替 ●畳替え ●外壁塗装 ●ハウスクリーニング) |
情報更新日時:2025年11月28日