売買
シャイニング川瀬V-2 14号地 売地 1,388.2万円
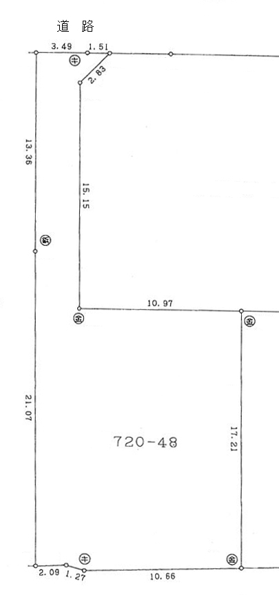
| 物件ID | 011938 |
|---|---|
| 所在地 | 彦根市南川瀬町 |
| 最寄り駅 | JR東海道線 河瀬駅 |
| 所要時間 | 1000m |
| 価格 |
1,388.2万円 @22.00万/坪 |
| 地積(m²) | 208.61m²(63.1坪) |
| 現況 | 更地 |
| 引渡 | 相談 |
| 接道状況 | 一方(接道方向:南東) |
| 地目 | 宅地 |
| 用途地域 | 第一種住居地域 |
| 建ぺい率 | 60% |
| 容積率 | 200% |
| 都市計画 | 市街化区域 |
| 土地権利 | 所有権 |
| 建築条件 | 無 |
| 取引態様 | 仲介 |
| その他費用 | - |
| 設備・条件 | 水道:公営/ガス:都市ガス/排水:下水 |
| 小学校区 | 河瀬小学校 |
| 備考 | ※ブロックフェンス負担金:500,000円/税込(1区画あたり) ※電柱・支線が設置される場合があります |
情報更新日時:2022年09月05日