売買
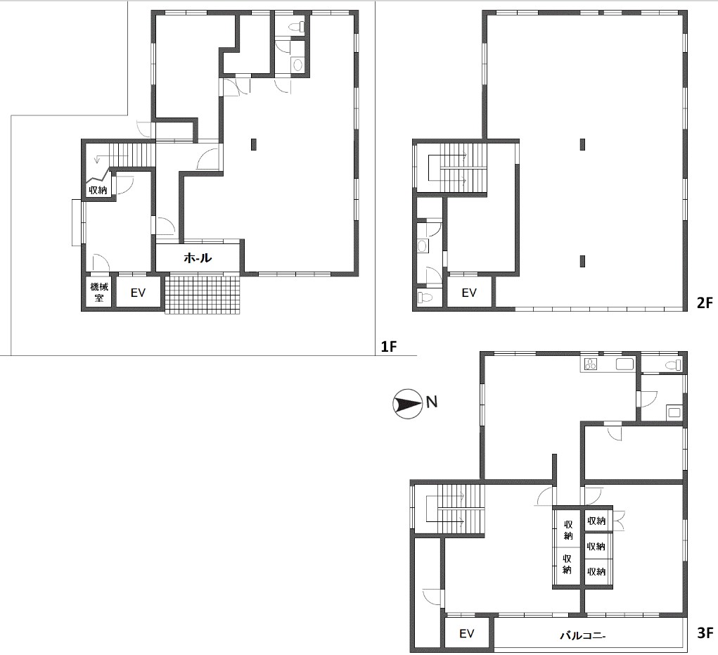
彦根市元岡町 事務所 2,380万円
| 物件ID | 011897 |
|---|---|
| 所在地 | 彦根市元岡町 |
| 最寄り駅 | 近江鉄道近江本線 彦根口駅 |
| 所要時間 | 徒歩7分 |
| 価格 |
2,380万円 @36.59万/坪 |
| 築年月 | 1989年08月 |
| 現況 | 空家 |
| 引渡 | 相談 |
| 接道状況 | 一方(接道方向:東) |
| 地目 | 宅地 |
| 用途地域 | 第一種住居地域 |
| 建ぺい率 | 60% |
| 容積率 | 200% |
| 都市計画 | 市街化区域 |
| 土地権利 | 所有権 |
| 建築条件 | 無 |
| 取引態様 | 仲介 |
| その他費用 | - |
| 設備・条件 | 水道:公営/ガス:都市ガス/排水:下水/バルコニー |
| 小学校区 | 佐和山小学校 |
| 備考 | ※R2年:外壁塗装 ※エレベーターの使用可否は不明です |
情報更新日時:2025年05月23日