売買
グッドライフタウン芹橋1丁目 02号地 売地 1,205万円
| 物件ID | 014174 |
|---|---|
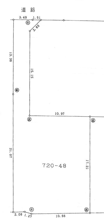
| 所在地 | 彦根市芹橋1丁目 |
| 最寄り駅 | JR東海道線 彦根駅 |
| 所要時間 | 徒歩18分 |
| 価格 |
1,205万円 @21.55万/坪 |
| 地積(m²) | 184.85m²(55.91坪) |
| 現況 | 更地 |
| 引渡 | 相談 |
| 接道状況 | 角地(接道方向:北西/南西) |
| 地目 | 宅地 |
| 用途地域 | 第一種住居地域 |
| 建ぺい率 | 60% |
| 容積率 | 200% |
| 都市計画 | 市街化区域 |
| 土地権利 | 所有権 |
| 建築条件 | 無 |
| 取引態様 | 仲介 |
| その他費用 | - |
| 設備・条件 | ガス:都市ガス/排水:下水/コンビニ近 |
| 小学校区 | 城東小学校 |
| 備考 | ※敷地内に電柱あり ※セットバック要:約20.63㎡ ※水道加入金(開栓手数料込):20mm 58,900円要 ※団地施設負担金:250,000円要 ※境界ブロックフェンス代:別途要 |
情報更新日時:2025年08月06日