売買
グリーンピア彦富 03号地 売地 1,296.38万円
| 物件ID | 013930 |
|---|---|
| 所在地 | 彦根市彦富町 |
| 最寄り駅 | JR東海道線 稲枝駅 |
| 所要時間 | 徒歩2分 |
| 価格 |
1,296.38万円 @25.30万/坪 |
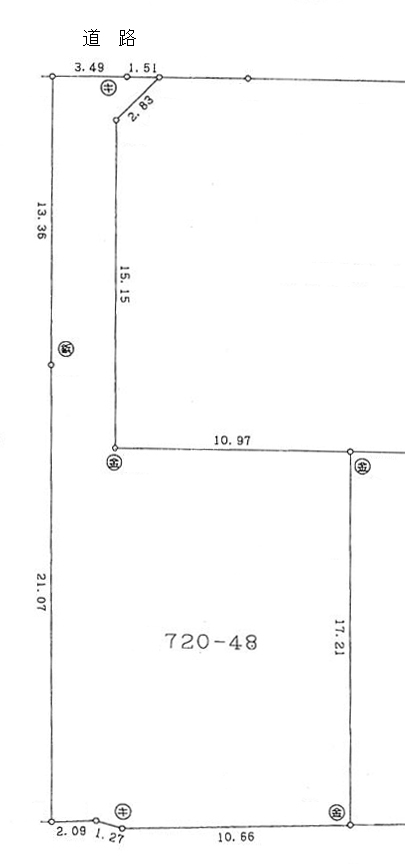
| 地積(m²) | 169.39m²(51.24坪) |
| 現況 | 更地 |
| 引渡 | 期日指定 |
| 接道状況 | 一方(接道方向:南西) |
| 地目 | 宅地 |
| 用途地域 | 第一種中高層住居専用地域 |
| 建ぺい率 | 60% |
| 容積率 | 200% |
| 都市計画 | 市街化区域 |
| 土地権利 | 所有権 |
| 建築条件 | 無 |
| 取引態様 | 仲介 |
| その他費用 | - |
| 設備・条件 | 水道:公営/ガス:プロパン/排水:下水/駅近 |
| 小学校区 | 稲枝東小学校 |
| 備考 | ※彦富町自治会(笹田地区)に属します 〈自治会費等別途要〉 ※水道加入金:40,800円要(13mm) |
情報更新日時:2025年02月19日