売買
彦根市高宮町 中古戸建 1,980万円
| 物件ID | 013795 |
|---|---|
| 所在地 | 彦根市高宮町 |
| 最寄り駅 | 近江鉄道近江本線 -駅 |
| 所要時間 | 徒歩10分 |
| 価格 |
1,980万円 @41.75万/坪 |
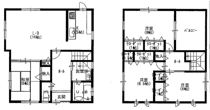
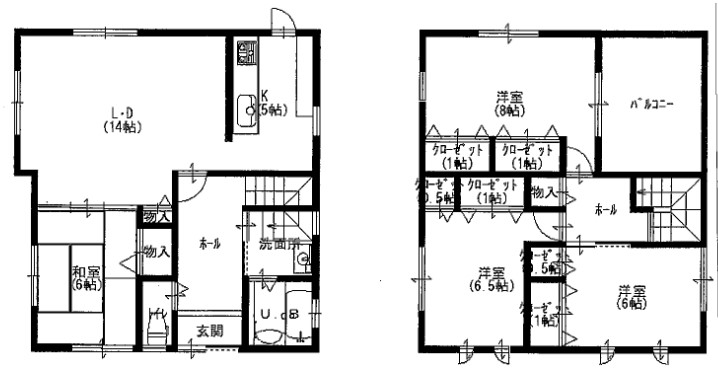
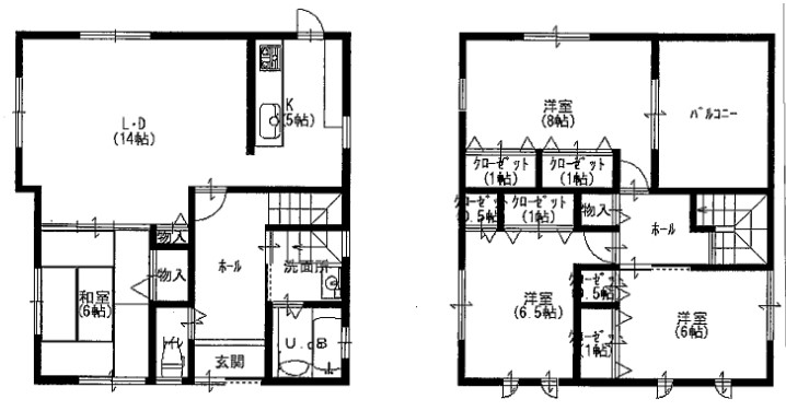
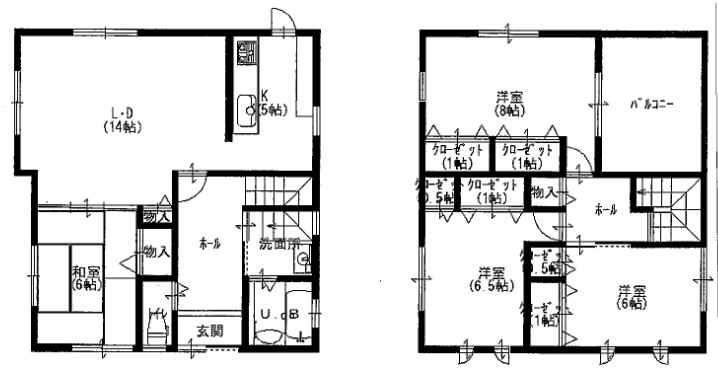
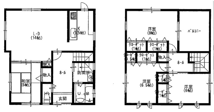
| 間取り | 4LDK |
| 築年月 | 2007年05月 |
| 国土法 | 不要 |
| 駐車場 / 料金 | 専用 |
| 現況 | 空家 |
| 引渡 | 相談 |
| 接道状況 | 一方(接道方向:北東) |
| 地目 | 宅地 |
| 用途地域 | 第一種住居地域 |
| 建ぺい率 | 60% |
| 容積率 | 200% |
| 都市計画 | 市街化区域 |
| 土地権利 | 所有権 |
| 建築条件 | 無 |
| 取引態様 | 仲介 |
| その他費用 | - |
| 設備・条件 | 水道:公営/ガス:プロパン/排水:浄化槽/三口コンロ/システムキッチン/追い焚き風呂/シャンプー・ドレッサー付洗面台/収納スペース有/玄関ポーチ |
| 小学校区 | 高宮小学校 |
| 備考 | ※2024年9月リフォーム済(●壁天井クロス張替 ●洗面台新調 ●ハウスクリーニング) ※下水道引込済、未接続 ワイドバルコニー |
情報更新日時:2025年10月14日