彦根市の物件は丸三不動産にお任せください!様々な条件からぴったりの物件をお探しいただけます。

売地物件ID:012825

  • 情報更新日:2023年02月09日

シャン・フレーズ佐野

  • 1,140万円 @21.99万/坪
  • 東近江市佐野町
  • JR東海道線 能登川駅 徒歩10分

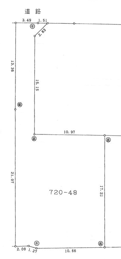
  • 171.40m²(51.84坪) 

  • 北西 

外観写真・内観写真

  •  

間取図

物件概要

現況 更地 引渡 相談
土地面積 171.40m²(51.84坪) 接道状況 一方(接道方向:北西)
地目 宅地 用途地域 第一種住居地域
建ぺい率 60% 容積率 160%
都市計画 市街化区域 土地権利 所有権
取引態様 仲介 建築条件
その他費用 - 小学校区 能登川南小学校
設備・条件 水道:公営/ガス:プロパン/排水:下水
備考 ※境界ブロックフェンス代:300,000円要 ※水道加入金:90,000円(13mm)要 ※分譲地内上空を電線が横断しています、建築は電線撤去後可能(2022年2月現在)

物件所在マップ

周辺施設
※情報更新のタイミング上、地図の施設情報は実際と異なる場合や、最新情報に更新されていない場合もございます。

ローンシミュレーション