滋賀県彦根地域の不動産売買・賃貸は、丸三不動産にお任せください!
ご来店案内予約
物件リクエスト
会社概要
賃貸検索
0749-23-0303
月曜~土曜
定休日:日曜・祝日
9:00~17:00(土曜日のみ10時から)
ご希望のお客様には物件満載の情報誌をプレゼント!
売りたい!査定してほしい!も、お気軽にお問い合わせ下さい!
彦根市の物件は丸三不動産にお任せください!様々な条件からぴったりの物件をお探しいただけます。
売買物件
土地検索
東沼波町プライムシティ
物件一覧に戻る
売地
物件ID:011664
情報更新日:2022年03月22日
Tweet
東沼波町プライムシティ 013号地
1,280.6773
万円
@24.40万/坪
彦根市東沼波町
JR東海道線 南彦根駅 1200m
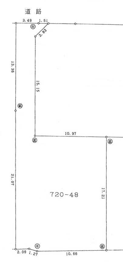
173.51m²(52.48坪)
南西
外観写真・内観写真
間取図
物件概要
現況
更地
引渡
相談
土地面積
173.51m²(52.48坪)
接道状況
一方(接道方向:南西)
地目
宅地
用途地域
第一種住居地域
建ぺい率
60%
容積率
200%
都市計画
市街化区域
土地権利
所有権
取引態様
仲介
建築条件
無
その他費用
-
小学校区
旭森小学校
設備・条件
水道:公営/ガス:都市ガス/排水:下水/電気有り
備考
※敷地内電柱あり
https://www.marusan.tv/sp/search_baibai/detail.php?id=8320
物件所在マップ
周辺施設
小・中学校
病院・診療所など
保育園・幼稚園
スーパーなど
コンビニ
※情報更新のタイミング上、地図の施設情報は実際と異なる場合や、最新情報に更新されていない場合もございます。
ローンシミュレーション
オススメ物件
1,236
万円
彦根市平田町
more
1,215.9641
万円
彦根市東沼波町
more
1,380
万円
彦根市川瀬馬場町
more
1,310.237
万円
彦根市東沼波町
more
1,076.2769
万円
彦根市大堀町
more
1,125.96
万円
彦根市南川瀬町
more
1,296.38
万円
彦根市彦富町
more
1,380
万円
彦根市平田町
more
1,050
万円
彦根市大藪町
more
1,324.1405
万円
彦根市東沼波町
more
物件一覧に戻る