彦根市の物件は丸三不動産にお任せください!様々な条件からぴったりの物件をお探しいただけます。

中古戸建物件ID:014486

  • 情報更新日:2026年04月14日

彦根市栄町2丁目

  • 3,100万円 @51.63万/坪
  • 彦根市栄町2丁目 3LDK
  • JR東海道線 彦根駅 2500m

  • 98.93m² 

  • 2018年08月 

外観写真・内観写真

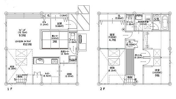
間取図

物件概要

現況 居住中 引渡 相談
土地面積 198.50m²(60.04坪) 建物面積 -
延べ床面積 98.93m² 建物階数 2階建
建物構造 木造 接道状況 一方(接道方向:北東)
地目 宅地 用途地域 第一種住居地域
建ぺい率 60% 容積率 200%
都市計画 市街化区域 土地権利 所有権
国土法 不要 取引形態 仲介
駐車場/料金 専用/- その他費用 -
小学校区 城西小学校
設備・条件 水道:公営/ガス:都市ガス/排水:下水/IHコンロ付き/システムキッチン/追い焚き風呂/床下収納/TVモニター付インターホン/ウォシュレット/収納スペース有/玄関ポーチ
備考 ※文化財包蔵地内(城下町遺跡) ※都市計画道路(計画決定)
吹抜,シューズIC,食洗器,畳コーナー,トイレ2カ所,エコキュート,オール電化

ローンシミュレーション