彦根市の物件は丸三不動産にお任せください!様々な条件からぴったりの物件をお探しいただけます。

売地物件ID:014288

  • 情報更新日:2025年12月02日

彦根市後三条町

  • 1,410万円 @19.05万/坪
  • 彦根市後三条町
  • JR東海道線 彦根駅 徒歩22分

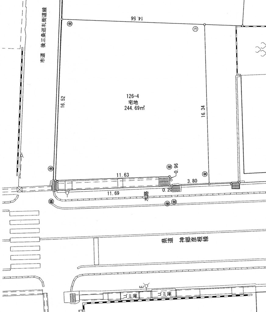
  • 244.69m²(74.01坪) 

  • 北西,北東 

事業にも 住宅にも 最適!

外観写真・内観写真

間取図

物件概要

現況 更地 引渡 相談
土地面積 244.69m²(74.01坪) 接道状況 二方(除角地)(接道方向:北西/北東)
地目 宅地 用途地域 近隣商業地域
建ぺい率 80% 容積率 200%
都市計画 市街化区域 土地権利 所有権
取引態様 専属専任 建築条件
その他費用 - 小学校区 城東小学校
設備・条件 水道:公営/ガス:プロパン/排水:下水
備考 事業にも 住宅にも 最適!
※構造物を設置する場合、市道の中心線から2mのセットバックが必要です ※都市ガスが前面道路(県道神郷彦根線)までは来ております

物件所在マップ

周辺施設
※情報更新のタイミング上、地図の施設情報は実際と異なる場合や、最新情報に更新されていない場合もございます。

ローンシミュレーション