彦根市の物件は丸三不動産にお任せください!様々な条件からぴったりの物件をお探しいただけます。

売地物件ID:014167

  • 情報更新日:2025年12月22日

彦根市芹川町

  • 1,400万円 @7.87万/坪
  • 彦根市芹川町
  • 近江鉄道近江本線 ひこね芹川駅 徒歩10分

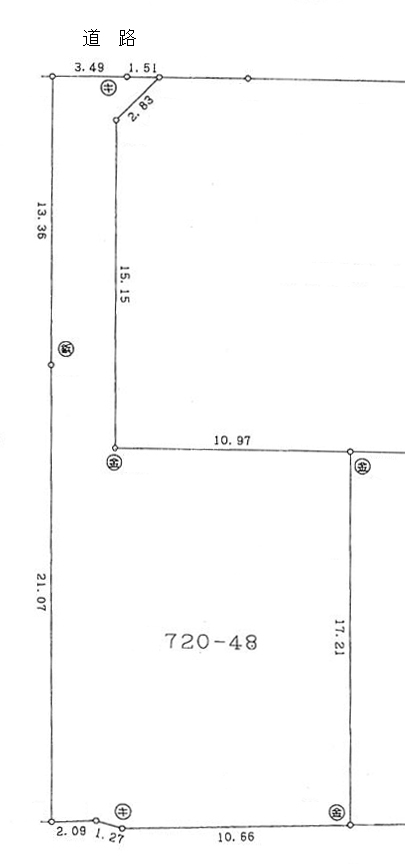
  • 588.42m²(177.99坪) 

  • 北,西 

外観写真・内観写真

間取図

物件概要

現況 上物有更地引渡 引渡 相談
土地面積 588.42m²(177.99坪) 接道状況 角地(接道方向:北/西)
地目 宅地 用途地域 第一種住居地域
建ぺい率 60% 容積率 200%
都市計画 市街化区域 土地権利 所有権
取引態様 仲介 建築条件
その他費用 - 小学校区 佐和山小学校
設備・条件 水道:公営/ガス:プロパン/排水:下水
備考 ※解体更地渡し ※セットバック要 ※売主の契約不適合責任免責

物件所在マップ

周辺施設
※情報更新のタイミング上、地図の施設情報は実際と異なる場合や、最新情報に更新されていない場合もございます。

ローンシミュレーション