
現況 | 更地 | 引渡 | 期日指定 |
---|---|---|---|
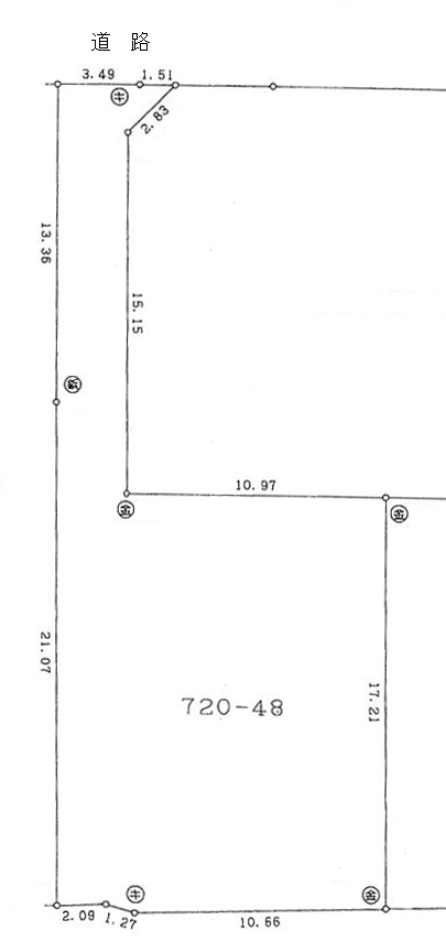
土地面積 | 166.73m²(50.43坪) | 接道状況 | 一方(接道方向:北東) |
地目 | 宅地 | 用途地域 | 第一種中高層住居専用地域 |
建ぺい率 | 60% | 容積率 | 200% |
都市計画 | 市街化区域 | 土地権利 | 所有権 |
取引態様 | 仲介 | 建築条件 | 無 |
その他費用 | - | 小学校区 | 稲枝東小学校 |
設備・条件 | 水道:公営/ガス:プロパン/排水:下水/駅近 | ||
備考 | ※彦富町自治会(笹田地区)に属します 〈自治会費等別途要〉 ※水道加入金:40,800円要(13mm) |
周辺施設 | |||
---|---|---|---|