滋賀県彦根地域の不動産売買・賃貸は、丸三不動産にお任せください!
ご来店案内予約
物件リクエスト
会社概要
賃貸検索
0749-23-0303
月曜~土曜
定休日:日曜・祝日
9:00~17:00(土曜日のみ10時から)
ご希望のお客様には物件満載の情報誌をプレゼント!
売りたい!査定してほしい!も、お気軽にお問い合わせ下さい!
01
彦根市の物件は丸三不動産にお任せください!様々な条件からぴったりの物件をお探しいただけます。
売買物件
土地検索
物件詳細
物件一覧に戻る
売地
物件ID:013435
情報更新日:2026年02月02日
Tweet
フリーガーデン東沼波
1,200
万円
@19.76万/坪
彦根市東沼波町
JR東海道線 南彦根駅 徒歩22分
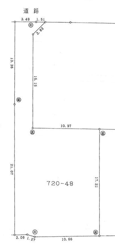
200.80m²(60.74坪)
南
外観写真・内観写真
間取図
物件概要
現況
更地
引渡
相談
土地面積
200.80m²(60.74坪)
接道状況
一方(接道方向:南)
地目
宅地
用途地域
第一種住居地域
建ぺい率
60%
容積率
200%
都市計画
市街化区域
土地権利
所有権
取引態様
仲介
建築条件
無
その他費用
-
小学校区
佐和山小学校
設備・条件
水道:公営/ガス:プロパン/排水:下水
備考
-
https://www.marusan.tv/sp/search_baibai/detail.php?id=10091
物件所在マップ
周辺施設
小・中学校
病院・診療所など
保育園・幼稚園
スーパーなど
コンビニ
※情報更新のタイミング上、地図の施設情報は実際と異なる場合や、最新情報に更新されていない場合もございます。
ローンシミュレーション
オススメ物件
1,035.18
万円
彦根市南川瀬町
more
1,302.7743
万円
彦根市東沼波町
more
1,296.38
万円
彦根市彦富町
more
1,280
万円
彦根市日夏町
more
980
万円
彦根市高宮町
more
1,493.9
万円
彦根市金沢町
more
1,226.6082
万円
彦根市東沼波町
more
1,208.1021
万円
彦根市東沼波町
more
1,175.62
万円
彦根市彦富町
more
910
万円
彦根市後三条町
more
物件一覧に戻る